Spring hovednavigationen over
Om styrelsen
Nyheder & presse
Job & karriere
In English
menu
Nyheder & presse
Privat
Erhverv
Tilmeld dig nyhedsmail
Publikationer
Blanketter og Ansøgninger
Regler og Love
Nyheder
Udbud af kurser
Afholdelse af kurser og Webinarer
Pressemeddelelser
Serviceinformation
testside
menu
Privat
Kørekort
Kørekort til 17-årige
Frakendelse og generhvervelse
Kørekort og udland
Fornyelse og erstatning
Syn
Periodisk syn
Udsættelse af synsfristen
Find synshal
Krav til køretøjer
Find typegodkendelse
Dataerklæringer
Tempo 100
Cykler og elcykler
Forsøgsordninger
Miljø og drivmidler
Bilsammenligner
Hvor langt på literen
Chiptuning
Klagemuligheder
Taxikunde
Syn
Buspassagerer
Kørekort
Uddannelse
Gods
Bus
Taxi
Varebil
Gå til Privat
Erhverv
Kørelærer og køreskoler
Frigivelse af køreprøver
Kørelæreruddannelsen
Regler og retningslinjer
Bus
International buskørsel
Takograf
Køre-hviletid
Uddannelser i bus- og godkørsel
Særlige ordninger
Restkøretøjer
Deltag i forsøgsordning
Eksamenskørsel
Udrykningskørsel
Taxi
Taxivognmænd
Taxichauffører
Kørselskontorer
Uddannelse som taxichauffør
Gods
Køre- og hviletid
Uddannelser i bus- og godkørsel
International godskørsel
Parkering på rastepladser
Varebil
National varebilskørsel
International varebilskørsel
Varebilsuddannelser
Løn- og arbejdsvilkår for chauffører
Uddannelse
Godkendelse af uddannelsessted
Taxi-kvalifikationsuddannelsen
Varebilsuddannelser
Kørelæreruddannelsen
Gods- og busuddannelser
Syn og kontrol
For synsvirksomheder
Vejsidesyn
Statistik for syn
Partikelfiltre til tunge køretøjer
Gå til Erhverv
Du er her:
Forside
Blanketter og Ansøgninger
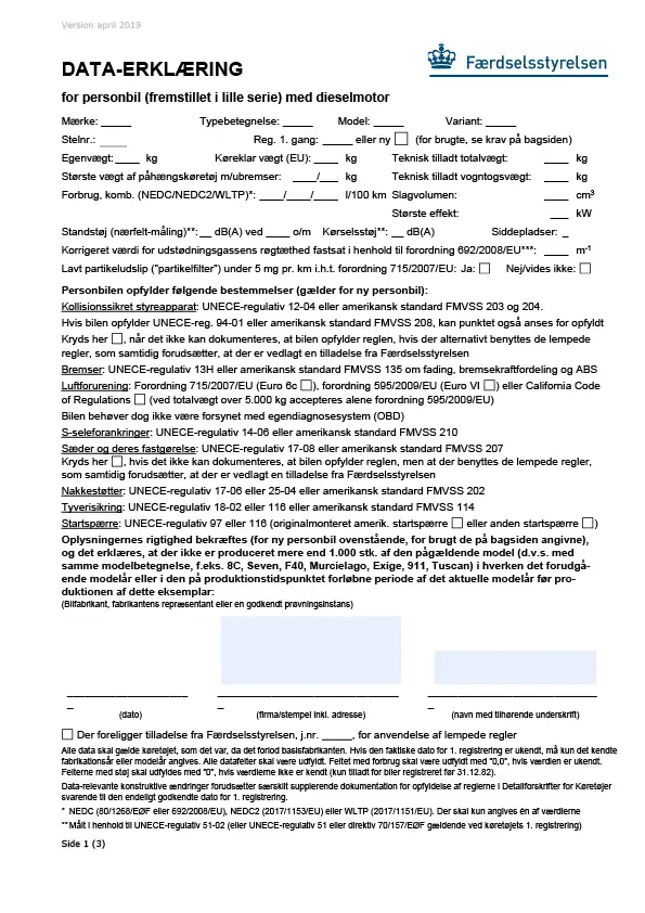
Dataerklæring for personbil med dieselmotor (fremstillet i lille serie)
Gå tilbage
Dataerklæring
Dataerklæring for personbil med dieselmotor (fremstillet i lille serie)
2023
Download